Communities
East Franklin in Pasco
Contact Kenmore Team Today!
Kimberly Rose, REALTOR®
(509) 212-5570
Contemporary designs with modern touches, the East Franklin neighborhood by Ramgar Homes, is the turn key and ready to go! Floor plans feature an open concept design, stucco, wood accents, landscaping, and energy efficiency all in a growing area in Pasco. Near parks and schools with easy access to the highway.
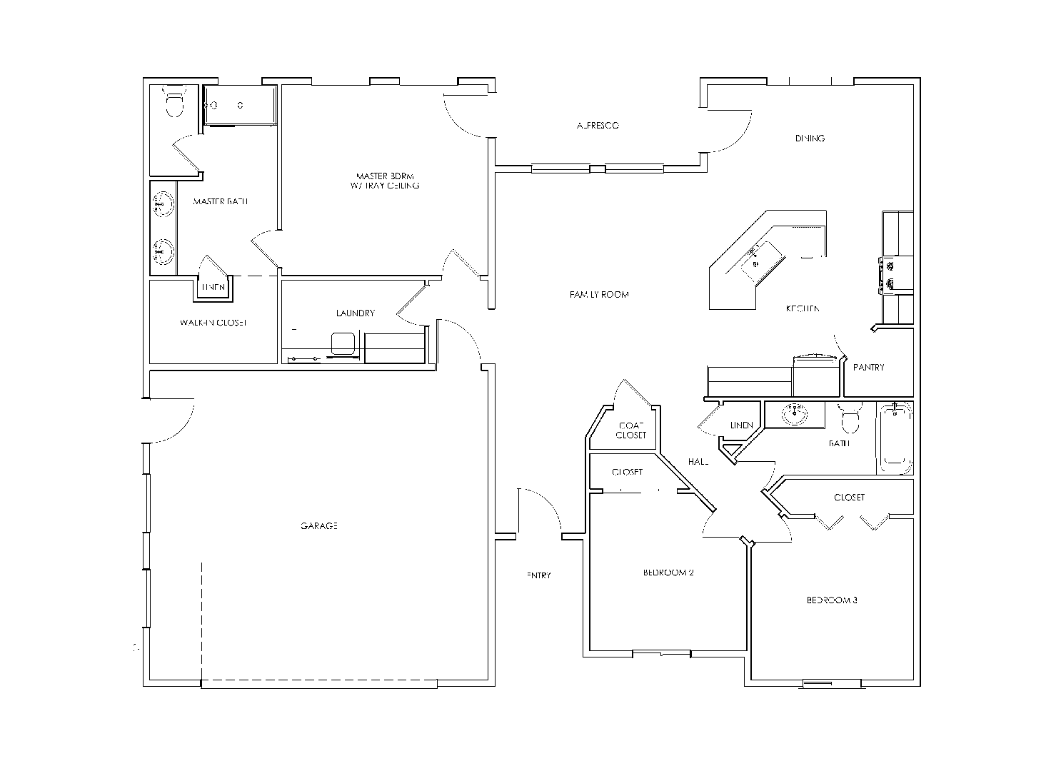
Brings a modern design with straight lines and warm wood accents to the face of the house for a WOW! factor. The floor layout has an inviting feeling for entertainment and connects to a cover alfresco for relaxing summer BBQ's. The master bedroom has privacy and spacious walk-in bathroom and closet.
3 BR 2 BA 2 Car Garage


Brings an eye catching modern design to the front of the house and a warm floor plan layout, not forgetting the space between the master bedroom and the other rooms. The Kitchen and covered alfresco will make a perfect match for entertainment or relaxation.
3 BR 2 BA 2 Car Garage


Brings a contemporary design with a modern touch and inviting open floor plan with a covered alfresco for entertainment. The master bedroom is separated from the other bedrooms to add privacy and a relaxing atmosphere.
3 BR 2 BA 2 Car Garage


CABINETS
Custom cabinets with various styles. All plywood no particle board
Solid face
Limited lifetime warranty
42" upper cabinets
Cabinets to match throughout house
COUNTER TOPS
Kitchen and bathroom matching quartz
PLUMBING
One-piece fiberglass tub
Tile walls (niche for shampoo storage)
Matching faucet finish throughout
Kitchen sink (stainless steel)
WINDOWS
White vinyl, energy efficient
FRONT DOOR
4-lite fiberglass entry door
INTERIOR DOORS
Primed MDF hollow core doors
GARAGE DOOR
16x8 insulated metal door with windows
BASEBOARDS
Primed MDF 1x6 flat stock
DOOR/WINDOW CASING
Primed 1x4 flat stock MDF. Wrapped window with header
FLOORING
LVP Rhino water proof flooring throughout
Carpeted bedrooms with 8lb padding
Bathroom floors-tile
LIGHTING
Energy efficient LED can light throughout main living area
Flush mount fixtures in bedrooms and closets
Vanity lighting in bathrooms
HARDWARE
Closets: shelf and pole
Door handles
Bathroom accessories (towel rack, rings, toilet TP holder)
PAINT
Exterior: Stucco, neutral colors
Interior: Sherwin Williams, semi-gloss
WARRANTY
1-year entire home (foundation to roof top)
5 year plumbing
10-year HVAC
FOUNDATION/CRAWL SPACE
16"x8" footing/ 12in thick pier pads
24"x6" steel reinforced foundation wall
4" thick garage slab
Crawl space ground cover with 6mil black poly vapor barrier
FLOORING SYSTEM
BCI 5000 24" OC
3/4" engineered moisture resistant tongue and groove OSB. Nailed and glued
Support saddle post and beam where needed
ROOFING SYSTEM
Engineer trusses and rafters
Architectural composite shingles
Synthetic underlayment
Ice and water shield on perimeters and valleys
SIDING/TRIM
Air and moister barrier
Advance pan window penetration system
Tape all house wrap seams
3 stage stucco (2 stage EIFS where applicable)
Decorative stucco design and window design (front of house only)
Decorative cedar tongue and groove shiplap (as per design and model)
INSULATION AND SHEETROCK
Ceilings- R-49 blown
Exterior walls- R-21 blown
Floor: R-30 batts
1/2" sheetrock walls and ceiling, orange peel texture with PVA primer
Garage (fire tape only)
MECHANICAL
Electrical: 200 Amp panel, GGI on 20amp breakers or as needed, 2 exterior outlets, lighted soffits (front of house only). All electrical as per code and regulations
PLUMBING
Pex-A advance piping system
2 frost free bibs
Water supply for refrigerator
50-Gal high efficient gas water heater